APPARTEMENT 2 PIECES DE 37.64 – 277 000

75019

PARIS

277000

Informations principales

2

pièce(s)

01

salle de bains/d’eau

37.64

superficie

1

étage(s)

Descriptif

Porte des Lilas
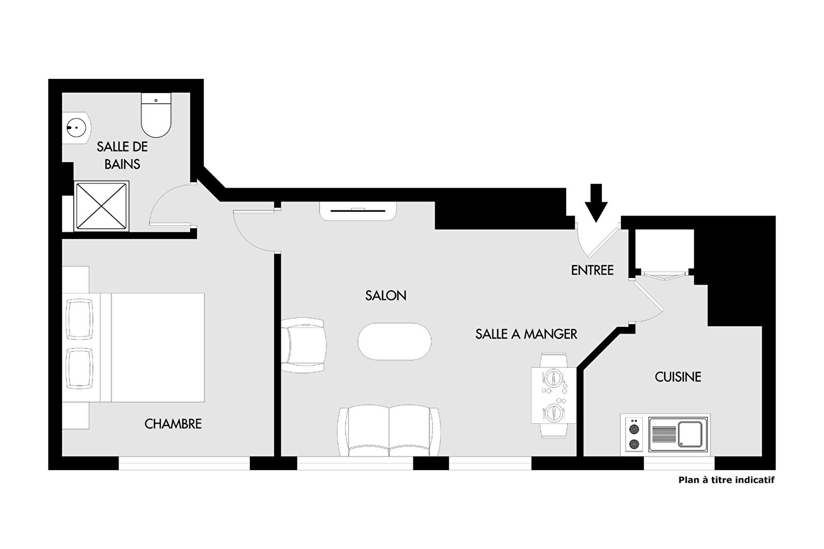
Dans un immeuble des années 70, les Agences du 19ème vous proposent un appartement deux pièces de 37.64 m² carrez.
En bon état, agencement optimal, lumineux (exposé Sud) , il se compose : d’un séjour, d’une cuisine indépendante (possible cuisine US), d’une chambre et d’une salle d’eau avec wc.
Proximité immédiates des transports et des commerces.
Copropriété de 205 lots – dont 72 lots habitation. (Pas de procédure en cours).

Charges annuelles : 2045 euros.

Taxe foncière : 885 euros.

Caractéristiques

Informations générales

Calme

Clair

1e

/ 11 étages

Intérieur

1 chambre(s)

1 toilette(s)

Séjour ~ 16.89 m2

Fenêtres Aluminium Double Vitrage

Volets PVC Roulant

Année de construction

1965

État

Bon Etat

Extérieur

Sécurité et services

Ascenseur

Interphone

Type de chauffage

Radiateur

Sources d’énergie

Chauffagedeville

Charges mensuelles

170


Photos et Plan du bien


Dépenses énergétiques

Performance énergétique (DPE)

D

Émissions de gaz à effet de serre (GES)

D


Détails du prix

Prix du bien : 277000.00

Frais de notaire estimés : 12000


L’agence

Les agences du 19ème – Les agences du 19ème – Jourdain

+33 1 83 81 15 18

jourdain@agences19.fr

3 rue Petitot

75019

Paris

Barème de l’agence